AGGIORNAMENTI
Cerca
07 Luglio 2021 - 18:37
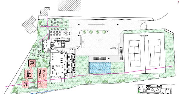
In foto, il progetto per la riqualificazione del Pedaggio
Per le strutture del Pedaggio (come il luogo è a molti noto), si erano evidenziati, al momento della ripresa in carico da parte dell’Amministrazione, notevoli problemi di stabilità e sicurezza, ed è stato necessario effettuare una valutazione per una ristrutturazione completa.
“Ora finalmente - spiega il Sindaco Loris Lovera - cominciamo a poter programmare, in modo coordinato, le attività di riqualificazione: è stato infatti approvato lo studio preliminare del progetto di fattibilità per il recupero della polisportiva, il cui investimento è stimato in 1,4 milioni di Euro”.
Il progetto prevede la totale riqualificazione dell’area, con la ripartizione in zone per attività sportiva, con zone fitness all’aperto, palestra, campo padel oltre ai due campi da tennis già presenti, e attività di socialità con bar e ristorazione.
“Su questa base di piano, - prosegue il primo cittadino - che conserva la caratterizzazione polisportiva e multifunzionale dell’area, ne garantisce la dotazione di servizi in termini di igiene e sicurezza, e ne amplia le potenzialità di offerta al pubblico, si avvierà il processo di affidamento delle opere, nei tempi più rapidi compatibilmente con le disponibilità di bilancio dell’Amministrazione. Si avvieranno anche prima possibile le procedure di gara per la concessione delle attività sportive e di manifestazione di interesse per le attività di ristorazione. Ciò consentirà di predisporre tutto quanto necessario alla immediata e completa ripresa delle attività non appena gli edifici riavranno piena funzionalità”.
Per quanto riguarda invece il campo di via della Fornace, già a fine maggio il Consiglio Comunale aveva deliberato di avviare il processo di affidamento dei lavori di riqualificazione ed ammodernamento.
Ora si sono stabiliti i criteri per il processo di affidamento dei lavori e della concessione d’uso, prevista su base quindicennale, secondo linee guida orientate al massimo beneficio possibile per la comunità castiglionese: per l’affidamento verranno considerate associazioni sportive a carattere dilettantistico; i progetti presentati verranno valutati sia dal punto di vista tecnico sia da quello della loro efficienza ed efficacia economica: la riqualificazione e successiva gestione dovrà infatti avvenire con elevato livello qualitativo, in modo economicamente sostenibile e senza oneri per il Comune. Verranno valutati la riqualificazione ed efficientamento delle strutture esistenti, la qualità del progetto sportivo, la celerità dei lavori, il piano dei servizi, dei costi e delle previsioni di entrate, la disponibilità dell’area. Le attività dovranno evitare sovrapposizioni con l’offerta sportiva degli altri impianti presenti sul territorio comunale: bocce, padel, tennis; dovranno essere valorizzati i progetti che prevederanno l’organizzazione di eventi sportivi e sociali, formazione sportiva con particolare attenzione alle scuole presenti sul territorio comunale, realizzazione di centri estivi.
Al termine della concessione, la struttura dovrà essere consegnata in ottimo stato all’amministrazione comunale concedente.
In attesa della nuova concessione, il Comune ha intanto comunque provveduto a risistemare le reti, le porte ed il terreno di gioco del campetto da calcio, al fine di concedere il libero utilizzo dello spazio ai cittadini.
Il campo sarà agibile negli orari indicati: Lunedì e Venerdì: 14 - 19; Martedì, Mercoledì e Giovedì: 14 -17; Sabato e Domenica: 9 -12.
Saranno disponibili anche dei palloni.
“Invitiamo i cittadini - conclude l’amministrazione - ad aiutarci a mantenere l’area pulita ed in ordine per tutti coloro che avranno piacere in questi mesi di giocare in compagnia!Con la realizzazione di questi due progetti, recupereremo e miglioreremo la possibilità di praticare sport e socialità in modo adeguato ai bisogni della cittadinanza”.
Edicola digitale
I più letti
Ultimi Video
LA VOCE DEL CANAVESE
Reg. Tribunale di Torino n. 57 del 22/05/2007. Direttore responsabile: Liborio La Mattina. Proprietà LA VOCE SOCIETA’ COOPERATIVA. P.IVA 09594480015. Redazione: via Torino, 47 – 10034 – Chivasso (To). Tel. 0115367550 Cell. 3474431187
La società percepisce i contributi di cui al decreto legislativo 15 maggio 2017, n. 70 e della Legge Regione Piemonte n. 18 del 25/06/2008. Indicazione resa ai sensi della lettera f) del comma 2 dell’articolo 5 del medesimo decreto legislativo
Testi e foto qui pubblicati sono proprietà de LA VOCE DEL CANAVESE tutti i diritti sono riservati. L’utilizzo dei testi e delle foto on line è, senza autorizzazione scritta, vietato (legge 633/1941).
LA VOCE DEL CANAVESE ha aderito tramite la File (Federazione Italiana Liberi Editori) allo IAP – Istituto dell’Autodisciplina Pubblicitaria, accettando il Codice di Autodisciplina della Comunicazione Commerciale.