AGGIORNAMENTI
Cerca
Sanità
06 Novembre 2022 - 19:46
Il progetto della nuova casa di Comunità di San Mauro
La struttura dovrebbe trovare spazio in via Speranza 31, a San Mauro Torinese, proprio dove oggi è già presente l’ambulatorio dell’AslTo4, l’area subirà un completo restyling.
Stiamo parlando della Casa di Comunità, l’edificio simbolo della “rivoluzione” della sanità territoriale che andrà in scena grazie ai fondi europei del Pnrr.
A San Mauro, l’amministrazione comunale della Sindaca Giulia Guazzora, ha lottato a lungo per ottenere quel “puntino” sul territorio sanmaurese.
Ora, però, arriva il “difficile”: nel giro di pochi mesi, infatti, il costo dell’intera opera è salito da 1.583.706,80 a 1.711.334,62, un aumento di circa 127 mila euro che sarà tutto a carico del Comune.
Rispetto al primo progetto di fattibilità, datato luglio 2022, i tecnici dell’AslTo4 hanno richiesto alcune modifiche che hanno comportato un aumento del costo.
In ogni caso, l’importo finanziato dal Pnrr, infatti, resterà sempre lo stesso, poco meno di 1,5 milioni di euro. Aumenta, invece, il cofinanziamento da parte del Comune che passa da 98 mila euro a 226 mila euro (soldi che saranno presi dall’avanzo di bilancio).
L’amministrazione ha già spiegato che questa sarà la massima cifra che il Comune potrà impegnare. E se dovessero servire più soldi? Boh, si andrà a bussare a casa di Ursula von der Leyen.
Ma facciamo un passo indietro? A cosa servono questi fondi?
Ad ampliare l’attuale ambulatorio e renderlo funzionale a quelli che sono i criteri delle nuove case di Comunità.
Proprio qualche giorno fa, l’amministrazione ha pubblicato il “nuovo” progetto, frutto delle integrazioni richieste dell’Asl.
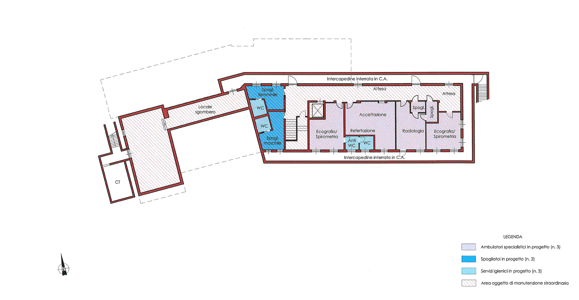
Per quanto riguarda il piano interrato (Foto QUI SOTTO) è prevista la realizzazione di 2 spogliatoi, 3 servizi igienici e 3 ambulatori specialistici (2 per ecografia e spirometria, 1 per radiologia).

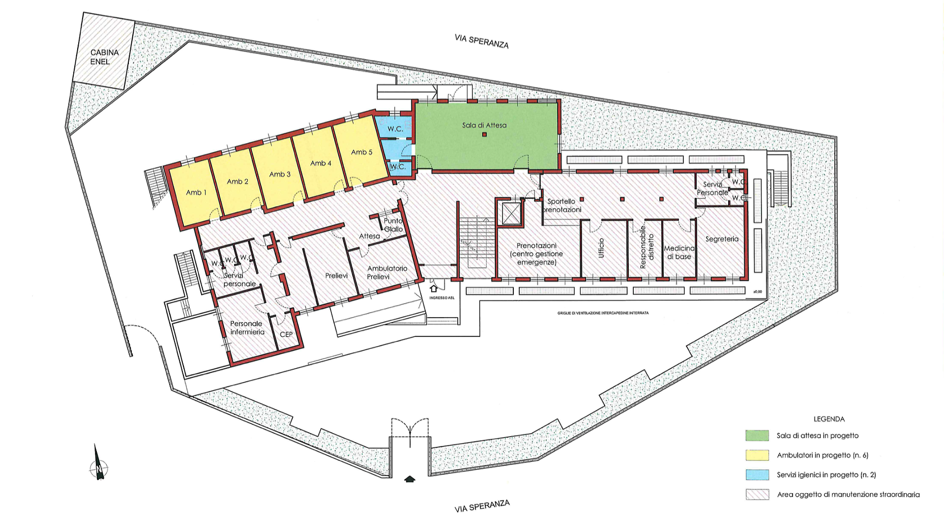
Al piano terra (FOTO QUI SOTTO), invece, ci sarà la Sala d’aspetto, 6 ambulatori e 2 servizi igienici.

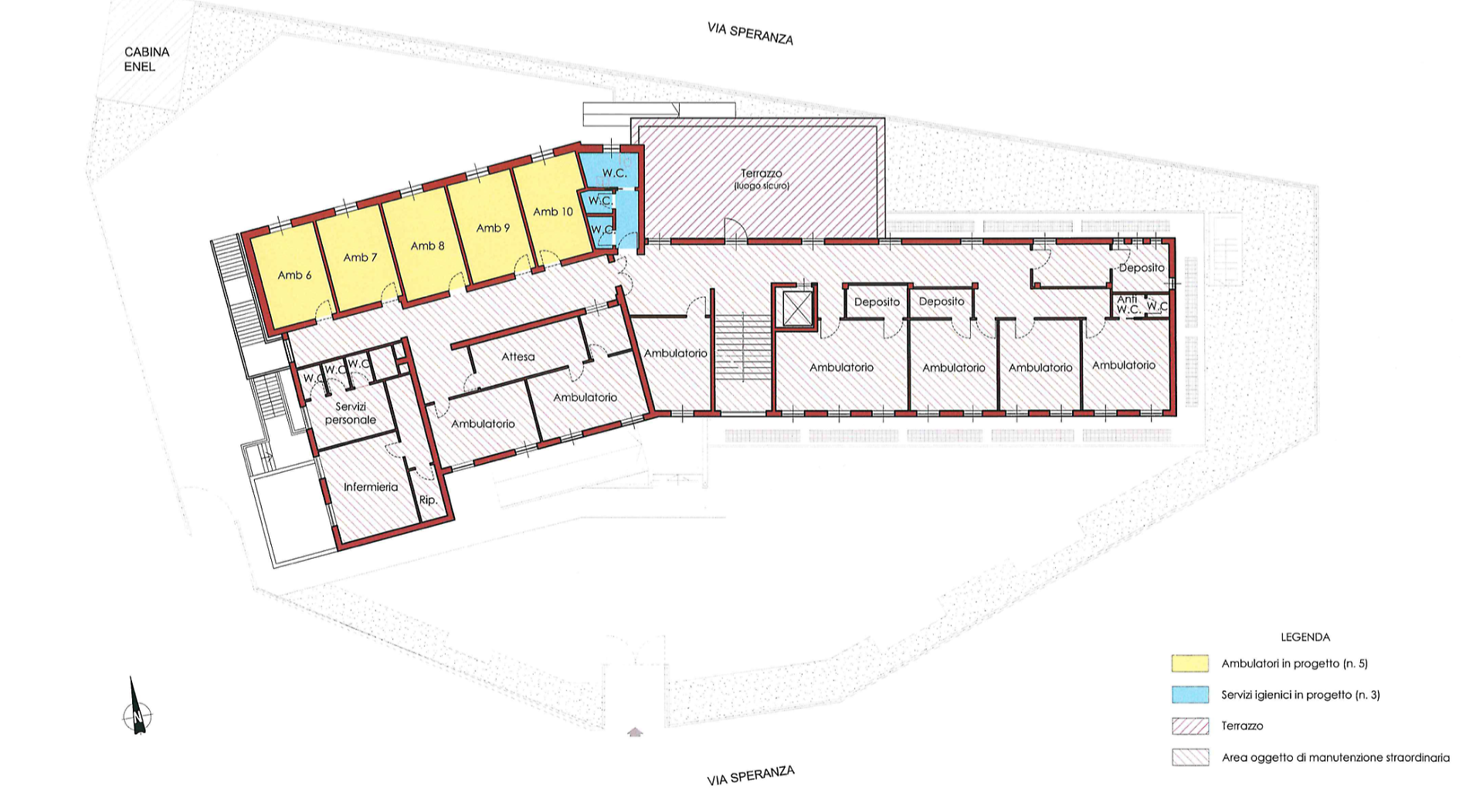
Al primo piano, infine, è prevista la realizzazione di 5 ambulatori e 3 servizi igienici.

Secondo quello che è il progetto approvato dalla giunta pochi giorni fa, all’interno della Casa di Comunità ci saranno 23 ambulatori, 12 in più rispetto agli 11 attualmente presenti.

Parliamo, dunque, di una struttura che dovrebbe rappresentare una svolta per quanto riguarda la sanità territoriale.

(In foto il rendering della struttura dopo il restyling e della sala d'aspetto)
Quante saranno le case di comunità in Piemonte?
La Regione Piemonte investirà 430 milioni di euro, con fondi derivanti dal Pnnr e da altre fonti, per rafforzare il sistema della sanità territoriale: 214 milioni porteranno alla realizzazione di 91 case di comunità, 29 ospedali di comunità e 43 centrali operative territoriali; 78 milioni saranno utilizzati per l’ammodernamento del parco tecnologico delle strutture sanitarie; 138 milioni serviranno per l’adeguamento antisismico di diversi ospedali.
La casa di comunità è struttura in cui opera un équipe multiprofessionale di medici di medicina generale, medici specialistici, infermieri di comunità, altri professionisti della salute e può ospitare anche assistenti sociali.
Edicola digitale
I più letti
Ultimi Video
LA VOCE DEL CANAVESE
Reg. Tribunale di Torino n. 57 del 22/05/2007. Direttore responsabile: Liborio La Mattina. Proprietà LA VOCE SOCIETA’ COOPERATIVA. P.IVA 09594480015. Redazione: via Torino, 47 – 10034 – Chivasso (To). Tel. 0115367550 Cell. 3474431187
La società percepisce i contributi di cui al decreto legislativo 15 maggio 2017, n. 70 e della Legge Regione Piemonte n. 18 del 25/06/2008. Indicazione resa ai sensi della lettera f) del comma 2 dell’articolo 5 del medesimo decreto legislativo
Testi e foto qui pubblicati sono proprietà de LA VOCE DEL CANAVESE tutti i diritti sono riservati. L’utilizzo dei testi e delle foto on line è, senza autorizzazione scritta, vietato (legge 633/1941).
LA VOCE DEL CANAVESE ha aderito tramite la File (Federazione Italiana Liberi Editori) allo IAP – Istituto dell’Autodisciplina Pubblicitaria, accettando il Codice di Autodisciplina della Comunicazione Commerciale.